网站首页
关于我们
新闻资讯
产品展示
钢模具
桥梁模具
箱涵管廊
路沿石模具
路沿石钢模具
路沿石塑料模具
U型槽模具
U形槽钢模具
U形槽塑料模具
隔离墩模具
隔离墩钢模具
化粪池模具
化粪池钢模具
检查井模具
检查井钢模具
井盖模具
井盖钢模具
井盖塑料模具
电力盖板模具
电力盖板钢模具
电力盖板塑料模具
高铁、铁路工程模具
高铁、铁路工程钢模具
高铁、铁路工程塑料模具
护坡模具
护坡钢模具
护坡塑料模具
花墙砖模具
花墙砖钢模具
花墙砖塑料模具
塑料模具
防撞墙模具
挂篮模板
风电基础模板
模具世界
模具加工
模具制品
模具公司
模具工业
米兰MiLan(中国)
模具加工
发布时间:2020-03-19 06:16:25
CONTACT
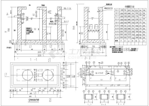
化粪池模具厂:某小区的化粪池施工结构图
化粪池结构图1
化粪池结构图2
化粪池结构图3
化粪池结构图4
上一篇:
隔离墩模具厂:隔离墩的安装工具和方法介绍
下一篇:
[化粪池模具厂]家用化粪池的标准尺寸
热门新闻
| NEWS
翰轩钢模板厂高层召开了目···
风电基础模板的拼装及每平···
PC预制墙板模具的生产厂···
预制阳台板模具在建筑中的···
安博中国有限公司官网
|
米兰平台
|
开云线上官网
|
星空线上平台(集团)官方网站
|
开云官方网页版
|
安博买球_安博(中国)
|
开云网页版登录入口
|
安博app平台中国有限公司
|
米兰平台
|